Standout Features
- Semi-detached house
- Three bedrooms
- Three reception rooms
- Off street parking
- Refitted bathroom
- West facing rear garden
- Close to local amenities
- Council Tax Band C
Property Description
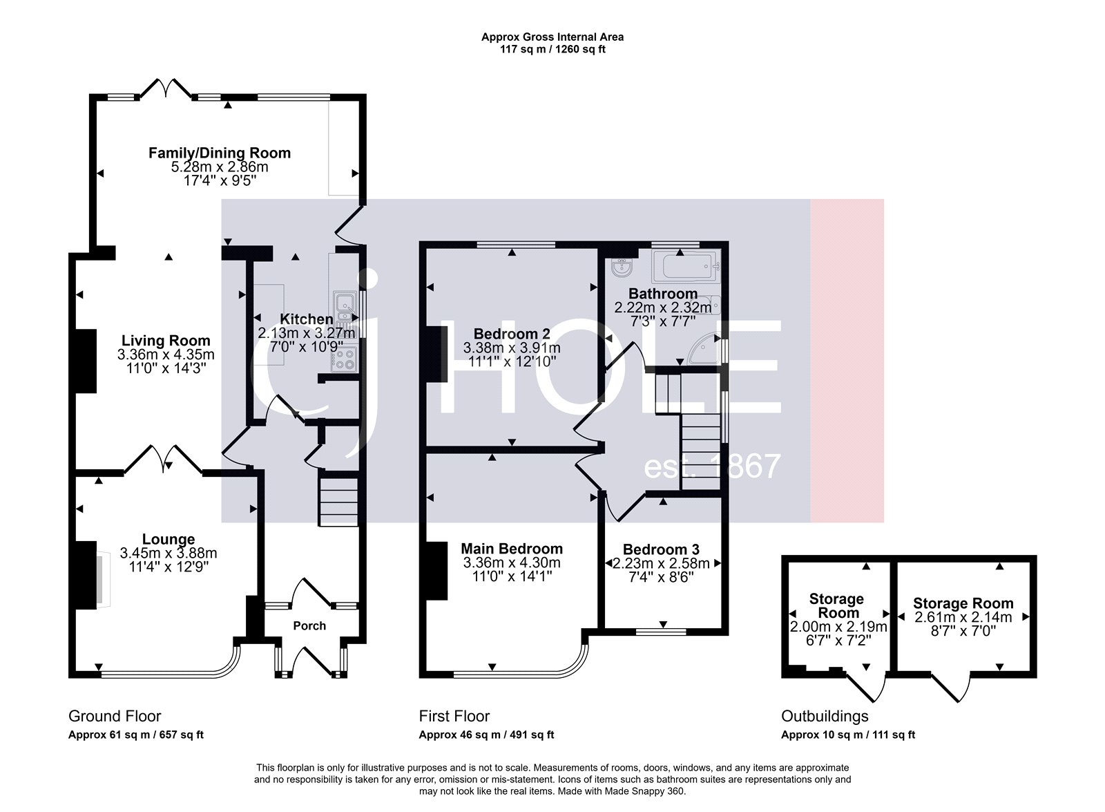
Offered to the market is this well presented three bedroom family home. The property has been extended on the ground floor to create ample living space and an open plan kitchen dining room, with French doors that open up onto a west facing rear garden.
This 1930's bay fronted property briefly consists of a porch, entrance hall, a light and airy sitting room, living room and kitchen, which leads to the extended family/dining room.
Whilst upstairs has a recently refitted bathroom, two double bedrooms and a generous single bedroom.
To the outside there is driveway parking, two brick built storage rooms and a private rear garden.
Additional benefits include being located close to various local amenities including: Barnwood Arboretum, schools and shops.
Tenure: Freehold
EPC: D
Council Tax Band: C
Additional Information
Rooms
Porch
Ceramic tiled flooring, UPVC front door and door to entrance hall
Entrance Hall
Fitted carpet, carpeted stairs to first floor, understairs storage cupboard, radiator and glass panelled wooden doors to kitchen and living room
Lounge
Fitted carpet, feature surround fireplace, UPVC bay window to front aspect, radiator and glass panelled wooden doors to living room
Living Room
Fitted carpet, radiator, glass panelled side opening doors to lounge, single door to entrance hall and opening to family/dining room
Family/Dining Room
Laminate flooring, radiator, eye and base level units with worktops over, UPVC French doors to rear garden, opening to living room and kitchen, and UPVC single door to side garden
Kitchen
A range of eye and base level units with worktops over, sink and drainer with mixer tap, space for cooker, plumbing for dishwasher, wall mounted gas boiler, space for fridge/freezer, radiator, utility cupboard with plumbing for washing machine, opening to family room and glass panelled wooden door to entrance hall
Landing
Fitted carpet, stairs to ground floor and UPVC window to side aspect
Main Bedroom
Fitted carpet, radiator and UPVC bay window to front aspect
Bedroom Two
Fitted carpet, radiator and UPVC window to rear aspect
Bedroom Three
Fitted carpet, radiator and UPVC window to front aspect
Bathroom
Refitted bathroom with a four piece suite consisting of: large bath with mixer tap and shower attachment, double walk-in shower cubicle with overhead rain shower and wall mounted hand wash basin in vanity unit. Partially tiled walls, underfloor heating, large chrome towel rail, loft access, inset ceiling spotlights, extractor fan and UPVC windows to side and rear aspect
Rear Garden
Enclosed by timber fencing, mainly laid to lawn, plant and shrub borders, paved pathway to rear of garden and patio area, timber built garden shed, and brick built storage rooms with power and lighting, concrete area providing additional parking, UPVC door to kitchen, outside tap and side opening gates to front driveway
Front Garden
Paved driveway, gravel area, UPVC door to porch and gate to side and rear garden
Material Information
Please use the QR code to open the material information
Referral
We always refer sellers to Montpellier Legal, Harvey Baker solicitors or RedKite Law solicitors and Embrace Financial Services. It is your decision whether you choose to deal with Montpellier Legal, Harvey Baker solicitors or Redkite Law solicitors and Embrace Financial Services. Should you decide to use Montpellier Legal, Harvey Baker solicitors or Redkite Law solicitors and Embrace Financial Services you should know that we would receive a referral fee of £100 from them for recommending you to them.
We are required by law to conduct anti-money laundering checks on all those selling or buying a property, the initial checks are carried out on our behalf by Lifetime Legal. This costs £55 (incl. VAT) which is paid directly to Lifetime Legal and is non-refundable.
Mortgage calculator
Monthly Repayments:
£
Are you ready to take the next step?
Speak with one of our team and we can help you find out your affordability.
All fields must be numbers
Calculate Your Stamp Duty
Results
Stamp Duty To Pay:
Effective Rate:
| Tax Band |
% |
Taxable Sum |
Tax |
Barnwood Avenue,
Gloucester,
GL4
Struggling to find a property? Get in touch and we'll help you find your ideal property.