Naunton Lane, Leckhampton, Cheltenham, GL53

£367,500 | Available

3 bedroom House For Sale

or call 01242 255101
Standout Features

Property Description

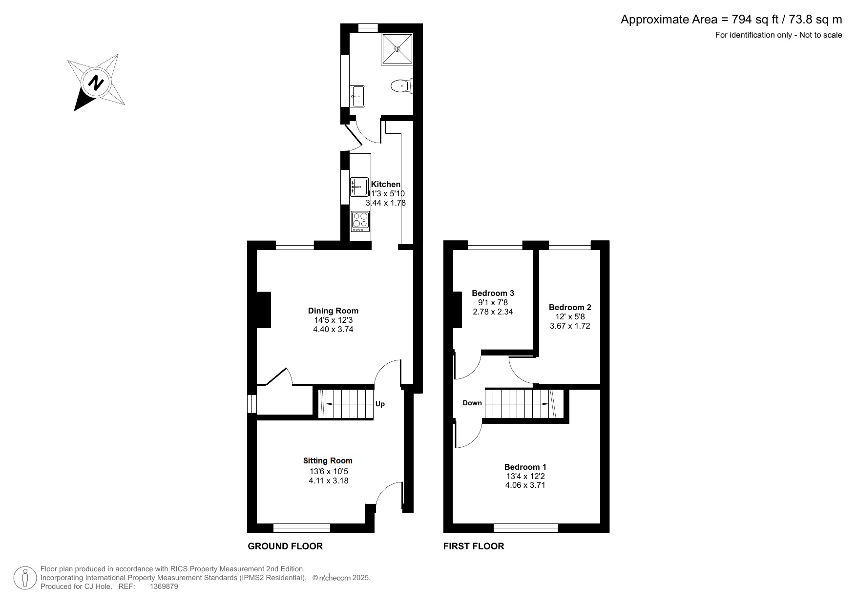
Description Situated in the popular Leckhampton area, 37 Naunton Lane is a charming three-bedroom semi-detached home that blends traditional character with modern comfort. The property features a welcoming entrance porch, a bright living room, and a separate dining area leading to a well-fitted kitchen. The contemporary family bathroom is conveniently located on the ground floor, just off the kitchen. Upstairs, there are three well-proportioned bedrooms offering comfortable family accommodation. Outside, the south-facing rear garden provides a lovely space for relaxation or entertaining, while the location offers easy access to Naunton Park, excellent local schools, and the bustling cafés and shops of Bath Road. Freehold. Situation Located in the highly sought-after Leckhampton area of Cheltenham, 37 Naunton Lane benefits from a perfect balance of village charm and town convenience. The property is within easy walking distance of Naunton Park, providing green space, walking paths, and recreational facilities. Local amenities, including independent shops, cafés, and restaurants along Bath Road, are close by, while excellent schools such as Naunton Park Primary and Leckhampton High are just a short walk away. With good transport links to Cheltenham town centre, the A40, and Cheltenham Spa railway station, the area offers both tranquility and accessibility, making it an ideal location for families and professionals alike.


Additional Information
Tenure:
Freehold
Council Tax Band:
C

Mortgage calculator

Calculate Your Stamp Duty
£
Results
Stamp Duty To Pay:
Effective Rate:
Tax Band % Taxable Sum Tax

Naunton Lane, Leckhampton, Cheltenham, GL53

Struggling to find a property? Get in touch and we'll help you find your ideal property.