Oriel Road, Cheltenham, Gloucestershire, GL50

£1,300 PCM | Let Agreed

2 bedroom Flat Let Agreed

or call 01242 255101
Standout Features

Property Description

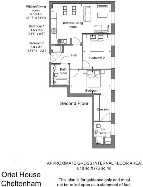
Located in the heart of Montpellier just off The Promenade a modern contemporary apartment with secure allocated parking. The accommodation briefly comprises an entrance hall with useful storage, open plan kitchen/living area with integrated appliances (washing machine not supplied), master bedroom with dressing area/built in wardrobes, ensuite shower room, a further double bedroom and separate bathroom. Further benefits include central heating, double glazing and a communal lift with the building. Perfect for a professional person or couple within easy walking distance of amenities such the theatre, restaurants and an array of local wine bars. DEPOSIT REQUIRED - £1500 AVAILABLE IMMEDIATELY UNFURNISHED NOTE : When you apply for a tenancy there will be a holding deposit of £300 to pay -ask our branch staff for further details.


Additional Information
Council Tax Band:
D

Oriel Road, Cheltenham, Gloucestershire, GL50

Struggling to find a property? Get in touch and we'll help you find your ideal property.