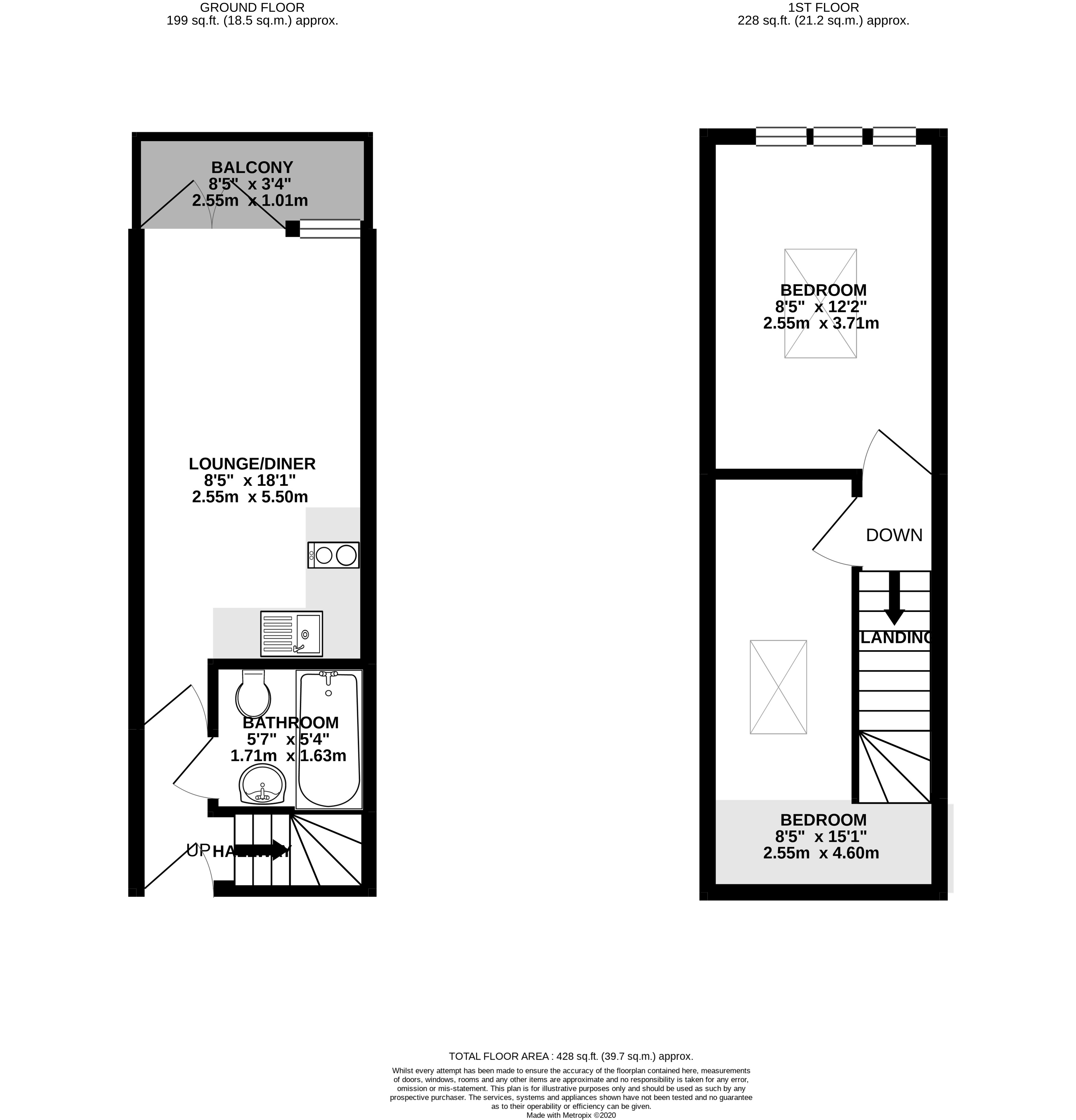
- Two Bedroom Modern Apartment
- Unfurnished & White Goods Included
- Open Plan Kitchen & Living Space
- Private Balcony/ Sun Terrace
- Ideal for a Couple of Single Occupant
- Available Start of June
The property features a modern kitchen, set in an open-plan style lounge/diner, and is fitted with a fridge, washing machine, electric oven and hob. Through the french doors, there is a small balcony which welcomes some extra natural light in to the lounge/dining area. Also on this floor is the bathroom which comes with a modern three piece suite with shower over bath. On the first floor you will find the bedroom which is tastefully decorated and overlooks the balcony allowing in lots of natural light. The second room would work well as an office or spare bedroom. Situated in a great location just off Gloucester Road; the property is packed with quirky features that truly sets it apart. Offered unfurnished and available for a move-in at the start of June.
Struggling to find a property? Get in touch and we'll help you find your ideal property.