Hambrook Street, Charlton Kings, Cheltenham, Gloucestershire, GL52

£1,670 PCM | Available

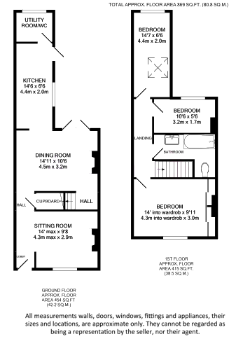
3 bedroom House To Let

or call 01242 255101
Standout Features

Property Description

Situated on a quiet street just off Ryeworth Road, this charming three bedroom Victorian cottage exudes warmth and character. Located in the desirable Charlton Kings area, the property offers a peaceful retreat, brimming with charm and period features. The private garden is perfect for outdoor relaxation and entertaining. This cottage is ideally positioned just a short walk from the vibrant Six Ways shops, local amenities, and scenic countryside trails. Families will love its location within the catchment area for Charlton Kings Infants and Junior Schools, as well as the highly-rated Balcarras School. With its period details and secluded garden, this home offers the perfect balance of tranquillity and accessibility—just a 25-minute walk from Cheltenham town centre. Don't miss this opportunity for peaceful, family-friendly living in a prime location! REQUIRED - £1925 AVAILABLE 19TH MARCH UNFURNISHED NOTE : When you apply for a tenancy there will be a holding deposit of £385 to pay -ask our branch staff for further details.


Additional Information
Council Tax Band:
C

Hambrook Street, Charlton Kings, Cheltenham, Gloucestershire, GL52

Struggling to find a property? Get in touch and we'll help you find your ideal property.