Filton Avenue, Filton, Bristol, BS34

£3,500 PCM | Available

5 bedroom House To Let

or call 0117 9232888
Standout Features

Property Description

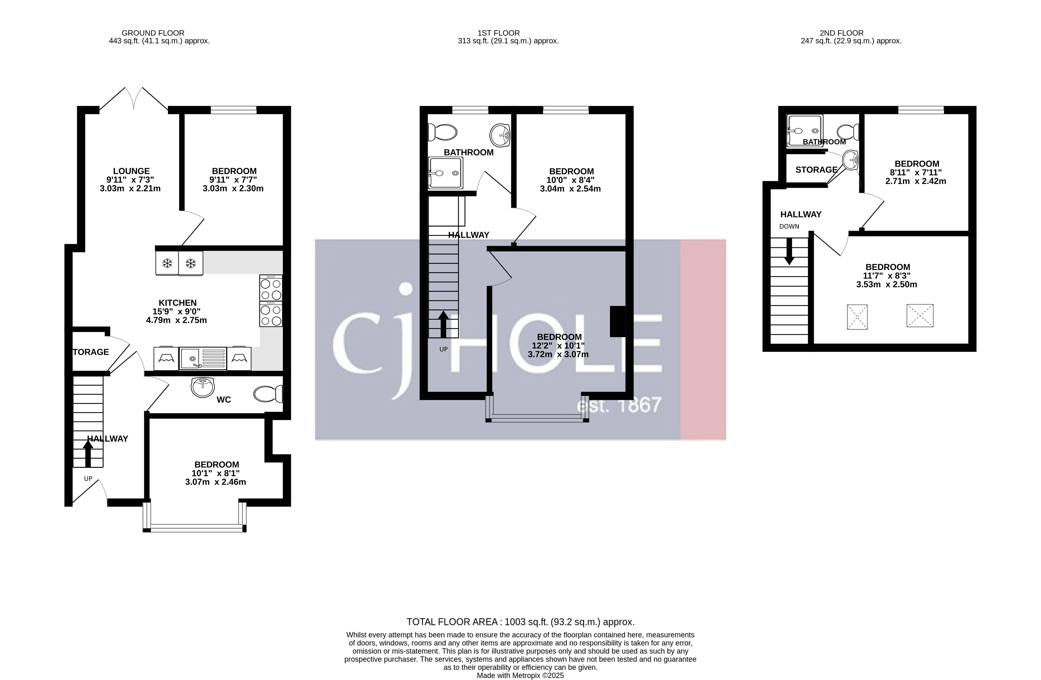
Each of the five bedrooms are stylishly decorated, and furnished with a bed, desk, chair, and wardrobe, offering a comfortable and practical space for both study and relaxation. The open-plan communal living area and sleek kitchen provide a welcoming hub for socialising, cooking, and dining as a group. The kitchen is equipped with modern appliances, including large fridge-freezers, washing machine, tumble dryer, and ovens. The private rear garden is a major highlight, featuring a newly laid patio perfect for outdoor dining, BBQs, and enjoying the warmer months with housemates. A driveway at the front of the property offers convenient off-street parking – a real advantage in this busy part of North Bristol. Located on Filton Avenue, the house is in a prime spot for students at both UWE and the University of Bristol. Bus routes run frequently along the avenue, making commuting quick and easy, while the popular Bristol-Bath cycle path and Concorde Way offer safe, scenic cycling alternatives. Filton Abbey Wood train station is also within walking distance, adding to the excellent transport links. The local area is packed with amenities tailored to student life. Nearby Gloucester Road is famous for its independent shops, cafés, and lively pubs, while the nearby Horfield Leisure Centre offers gym facilities, fitness classes, and a swimming pool. Supermarkets including Aldi, Lidl, and a large Tesco Extra are just a short walk away, making food shopping simple and affordable. The location also places you close to UWE’s Frenchay Campus and the ever-expanding aerospace and tech hubs around Filton, useful for students on placement or studying engineering, computing, or business. Social life is vibrant, with local favourites like The Bulldog and The Royal Oak offering student-friendly atmospheres, while Filton Park and Elm Park provide green space for relaxation and outdoor activities.


Additional Information
Council Tax Band:
B

Filton Avenue, Filton, Bristol, BS34

Struggling to find a property? Get in touch and we'll help you find your ideal property.