The Woodlands, Whitchurch, BS14

£350,000 | Available

Land (Residential) For Sale

or call 0117 4729146
Standout Features

Property Description

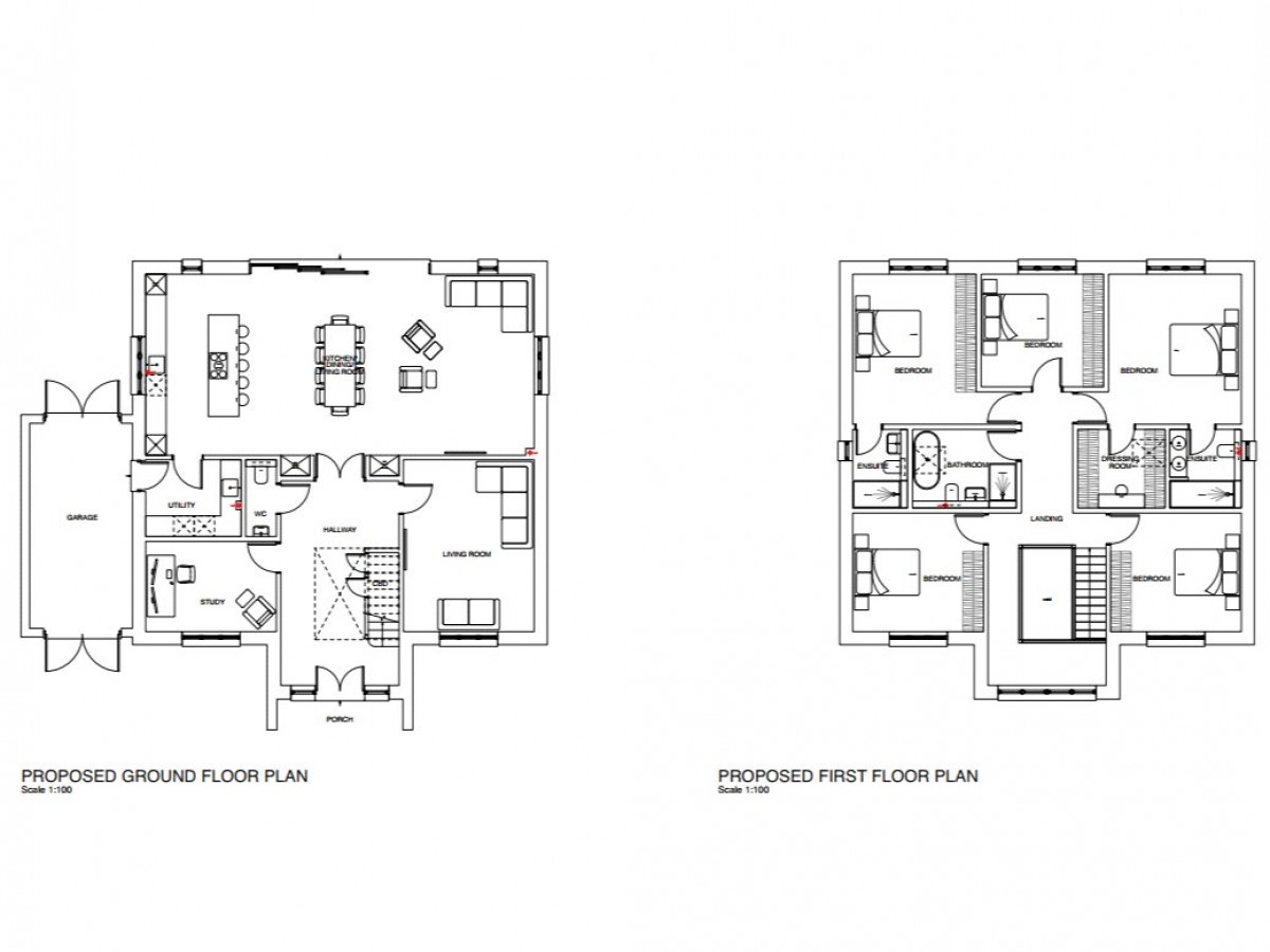
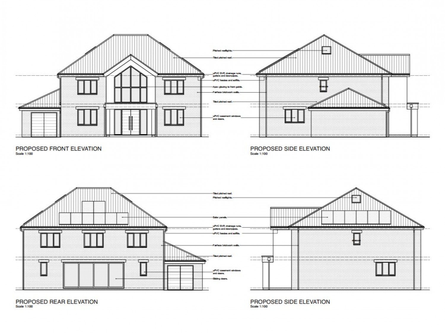
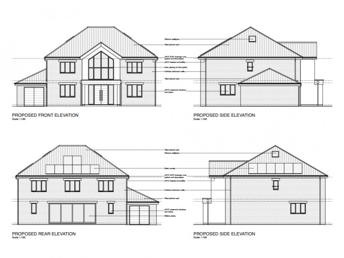
A fantastic opportunity to acquire a substantial plot of approximately 950.76m², positioned between two neighbouring plots of equal size. Quietly tucked away from busy roads, this attractive setting offers a wonderful sense of privacy while still being within easy reach of local amenities and nearby towns. Full planning permission has already been granted for a large five-bedroom detached family home featuring a triple driveway, garage, and a spacious rear garden, allowing a buyer to move straight ahead with an impressive build. The proposed layout offers generous living areas and ample outdoor space, ideal for a growing family or those seeking a bespoke forever home. Full plans can be found under planning application reference: 25/03390/VAR . To the rear, the site enjoys a beautiful outlook across an orchard and open fields where horses and donkeys graze, providing a lovely rural backdrop and a genuine sense of countryside living. The peaceful position and natural surroundings create a rare lifestyle opportunity that feels both secluded and scenic. An exceptional chance to create a substantial property in a quiet, established location with planning already in place, ready for someone’s vision to become reality. Located in a quiet, rural area on the outskirts of Whitchurch, this plot is situated approximately 10 miles from Bath and 4 miles from Bristol City Centre. There is easy access to both cities with Bristol and Bath road only being a short distance away. Whitchurch has a number of local amenities such as shops, pubs, a supermarket, Sports Centre and Primary Schools, perfect for a growing family.


Additional Information
Tenure:
Freehold

Mortgage calculator

Calculate Your Stamp Duty
£
Results
Stamp Duty To Pay:
Effective Rate:
Tax Band % Taxable Sum Tax

The Woodlands, Whitchurch, BS14

Struggling to find a property? Get in touch and we'll help you find your ideal property.