Standout Features
- No onward chain
- Light and airy open plan living space
- One double bedroom
- Well presented and modern property
- Gloucester City Centre location
- Potential rental income of 7.1% gross yield
- Lease information: 990 years left on the lease and £600 per annum service charge
- Council tax Band A
Property Description
Offered for sale with no onward chain is this modern and well-presented one bedroom apartment. This property is conveniently located just off the main London Road, close to the city centre and the various local amenities it has to offer including Gloucester Royal Hospital, Gloucester train station and the docks.
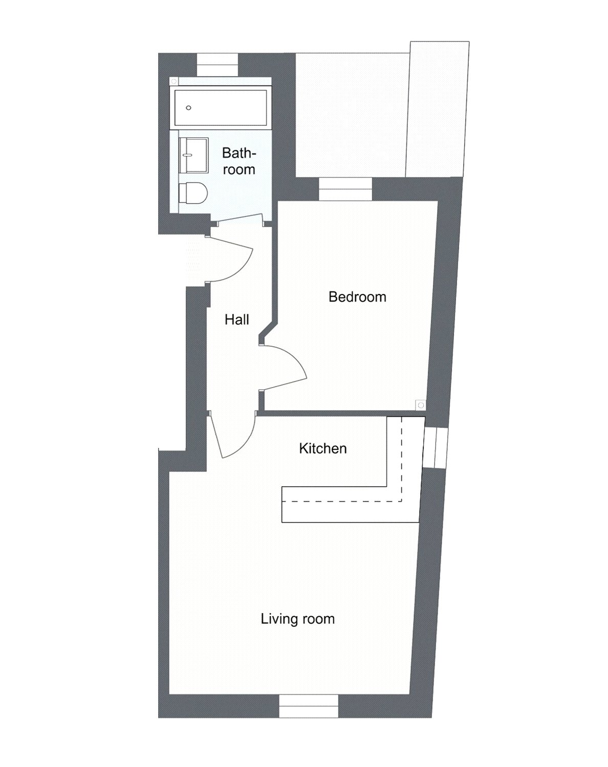
The property briefly consists of a communal entrance hall which leads to the first floor apartments, whilst the flat itself has a hallway, bathroom, a double bedroom and a light and airy open plan living room/kitchen.
This is an ideal property for a first time buyer or investment purchase as it could earn a potential gross yield of 7.1% on the rental market.
Tenure: Share of freehold
Lease information: 990 years left on the lease and £600 per annum service charge
EPC: B
Council Tax Band: A
Additional Information
Tenure:
Share of Freehold
Lease Years Remaining:
990
Service Charge:
£600 per year
Rooms
Communal entrance hall
Stairs to first floor and front door
Hallway
Laminate flooring, entrance phone system and doors to all rooms, communal entrance hall and landing
Bathroom
Three piece suite comprising: panelled bathroom with shower over, closed coupled wc and hand wash basin in vanity unit. Heated towel rail and double glazed window to rear aspect
Bedroom
Fitted carpet, radiator and UPVC window to rear aspect
3.53m x 2.64m
Kitchen/Living room
Kitchen area: A range of eye and base level units with work tops over, built in oven and electric ceramic hob with extractor fan over, sink and drainer, plumbing for washing machine, vinyl flooring, double glazed window to side aspect and door to hallway.
Living area: Vinyl flooring, double glazed window to front aspect, radiator, loft hatch and built in cupboard housing the hot water tank
4.85m x 4.09m
Material Information
Please use the QR code to open the material information
Leasehold Information
Lease length: 990 years
Service charge: £600 per annum
Referral
We always refer sellers to Montpellier Legal, Harvey Baker solicitors or RedKite Law solicitors and The Mortgage Brain. It is your decision whether you choose to deal with Montpellier Legal, Harvey Baker solicitors or Redkite Law solicitors and The Mortgage Brain. Should you decide to use Montpellier Legal, Harvey Baker solicitors or Redkite Law solicitors and The Mortgage Brain you should know that we would receive a referral fee of £100 from them for recommending you to them.
We are required by law to conduct anti-money laundering checks on all those selling or buying a property, the initial checks are carried out on our behalf by Lifetime Legal. This costs £55 (incl. VAT) which is paid directly to Lifetime Legal and is non-refundable.
Mortgage calculator
Monthly Repayments:
£
Are you ready to take the next step?
Speak with one of our team and we can help you find out your affordability.
All fields must be numbers
Calculate Your Stamp Duty
Results
Stamp Duty To Pay:
Effective Rate:
| Tax Band |
% |
Taxable Sum |
Tax |
Newland Street,
Gloucester,
GL1
Struggling to find a property? Get in touch and we'll help you find your ideal property.