- communal entrance & lift access to all floors
- residents lounge
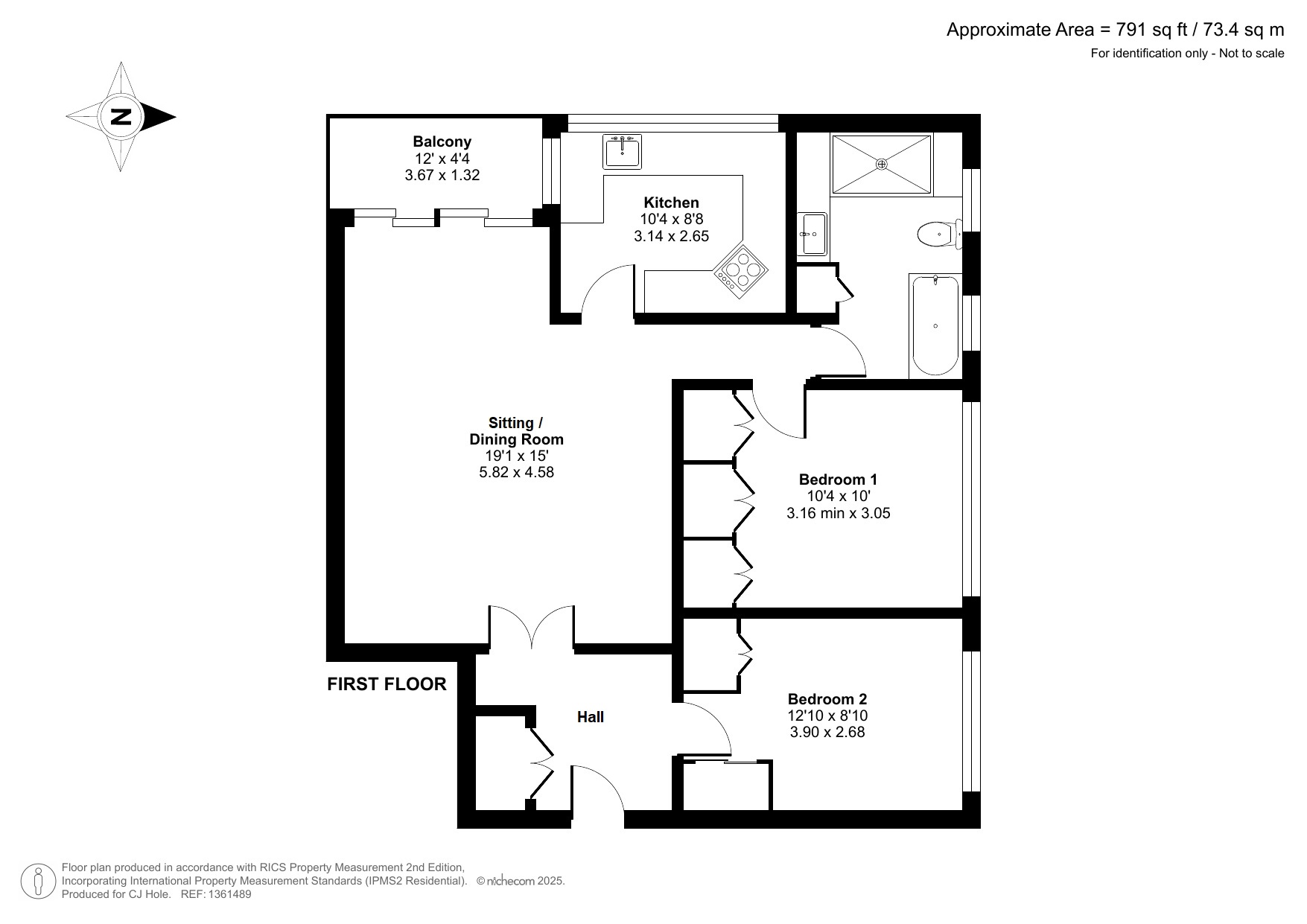
- private entrance hall & west facing balcony
- sitting/dining room & kitchen
- 2 double bedrooms with built-in wardrobes
- bathroom with bath & separate shower
- residents’ parking & single en-bloc garage
- communal gardens with pedestrian gated access to Pittville Park
- electric heating, council tax C & no onward chain
- annual service charge £2760 & 973 years remaining on lease
Enjoying far-reaching views across beautifully maintained communal gardens and towards the picturesque Pittville Park, this light-filled first floor apartment offers spacious and beautifully presented accommodation in a highly sought-after location. The property features a welcoming entrance hall with a useful storage cupboard, leading to an open-plan sitting/dining room with sliding patio doors that open onto a private, west-facing sun terrace—perfect for enjoying the afternoon sun. A re-fitted kitchen is equipped with a range of quality integrated appliances, while both double bedrooms are generously sized and include built-in wardrobes. The contemporary bathroom offers both a bath and a large independent shower cubicle. Outside, the well-kept communal gardens provide gated pedestrian access directly into Pittville Park. Further benefits include modern electric heating, visitors parking, a single garage, access to a communal residents' lounge, and the property is offered for sale with no onward chain. Leasehold Pittville Court is perfectly positioned between Cheltenham Racecourse and the town centre and offers residents direct access to Pittville Park. A general store on New Barn Lane is just moments away, while regular bus services from Albert Road and the Racecourse provide quick and easy access into the heart of Cheltenham — also within a comfortable 15-minute walk. Cheltenham offers an outstanding shopping experience, from well-known high street brands to specialist boutiques, complemented by an excellent choice of cafés and restaurants. Families are well catered for with a wide range of educational options, and the town boasts superb sporting facilities both locally and nearby. Famed as the home of horse racing’s prestigious Gold Cup, Cheltenham also enjoys a vibrant cultural scene, hosting annual festivals celebrating music, literature, and jazz. Transport links are excellent, with easy access to the M5 and direct train services to London Paddington in just over two hours.
| Tax Band | % | Taxable Sum | Tax |
|---|
Struggling to find a property? Get in touch and we'll help you find your ideal property.