Copper Building, Bristol, BS13

£245,000 | Available

2 bedroom Flat For Sale

or call 0117 472 9131
Standout Features

Property Description

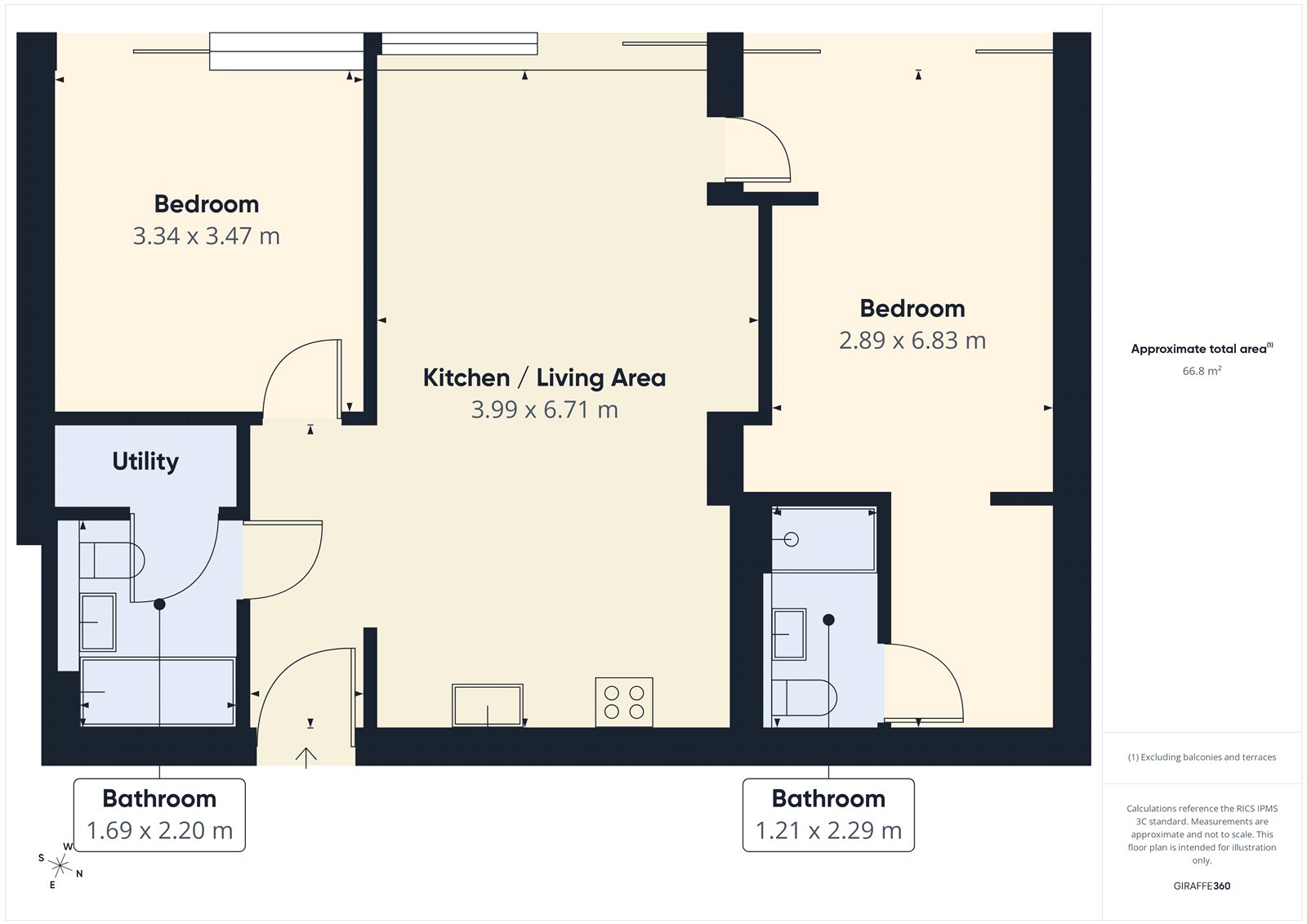
The primary living zone consists of a vast, open-plan kitchen and living area that serves as the heart of the home. This central space is designed for both relaxation and entertaining, with plenty of room for dedicated seating and dining sections. The kitchen is seamlessly integrated into the room, ensuring a social atmosphere while maintaining a practical and efficient workspace for meal preparation. The sleeping quarters are intelligently split to either side of the main living area, ensuring a high degree of privacy for all occupants. One substantial bedroom benefits from its own private en-suite bathroom, while the second bedroom is positioned adjacent to a separate, well-appointed bathroom. A practical utility room is also included, providing essential storage and laundry space that helps keep the main living areas tidy and clutter-free. Externally, the apartment boasts a remarkable balcony that spans the entire length of the property, providing panoramic views over the adjacent lake. The development itself is equipped with lift access for total convenience and includes a residents' garage for secure off-street parking. This combination of scenic outdoor space and comprehensive building amenities makes it a truly standout residence in a popular location. Copper Building is part of the Lakeshore development and is located close to Imperial Retail Park and the Malago Greenway cycle path with a 20 minute cycle to Bristol City Centre. The Metro Bus can be found at Novers Lane and the Lakeshore development features a gym, 24/7 security systems, gated access, bike storage, fishing lake, apple orchards and community garden allotments. Despite being less than five miles from the city centre, Lake Shore has a peaceful and rural feeling which makes it truly special. Verified Material Information Council Tax band: B Property type: Flat Property construction: Standard construction Energy Performance rating: C Electricity supply: Mains electricity Solar Panels: No Other electricity sources: No Water supply: Mains water supply Sewerage: Mains Heating: Room heaters only is installed. Heating features: Double glazing Broadband: FTTP (Fibre to the Premises) Mobile coverage: O2 - Good, Vodafone - Good, Three - Good, EE - OK Parking: Allocated and Covered Building safety issues: No Restrictions - Listed Building: No Restrictions - Conservation Area: No Restrictions - Tree Preservation Orders: None Public right of way: No Long-term area flood risk: No Historical flooding: No Flood defences: No Coastal erosion risk: No Planning permission issues: No Accessibility and adaptations: None Coal mining area: Yes Non-coal mining area: No All information is provided without warranty. Contains HM Land Registry data © Crown copyright and database right 2021. This data is licensed under the Open Government Licence v3.0. The information contained is intended to help you decide whether the property is suitable for you. You should verify any answers which are important to you with your property lawyer or surveyor or ask for quotes from the appropriate trade experts: builder, plumber, electrician, damp, and timber expert.


Additional Information
Ground Rent:
£250 per year
Service Charge:
£3,750 per year
Council Tax Band:
B

Utilities
Broadband:
Fibre to Premises
Electricity:
Mains Supply
Sewerage:
Mains Supply
Water:
Heating:
Double Glazing

Mortgage calculator

Calculate Your Stamp Duty
£
Results
Stamp Duty To Pay:
Effective Rate:
Tax Band % Taxable Sum Tax

Copper Building, Bristol, BS13

Struggling to find a property? Get in touch and we'll help you find your ideal property.