Hawkswood Road, Warden Hill, Cheltenham, GL51

£480,000 | Available

3 bedroom Bungalow For Sale

or call 01242 255101
Property Description

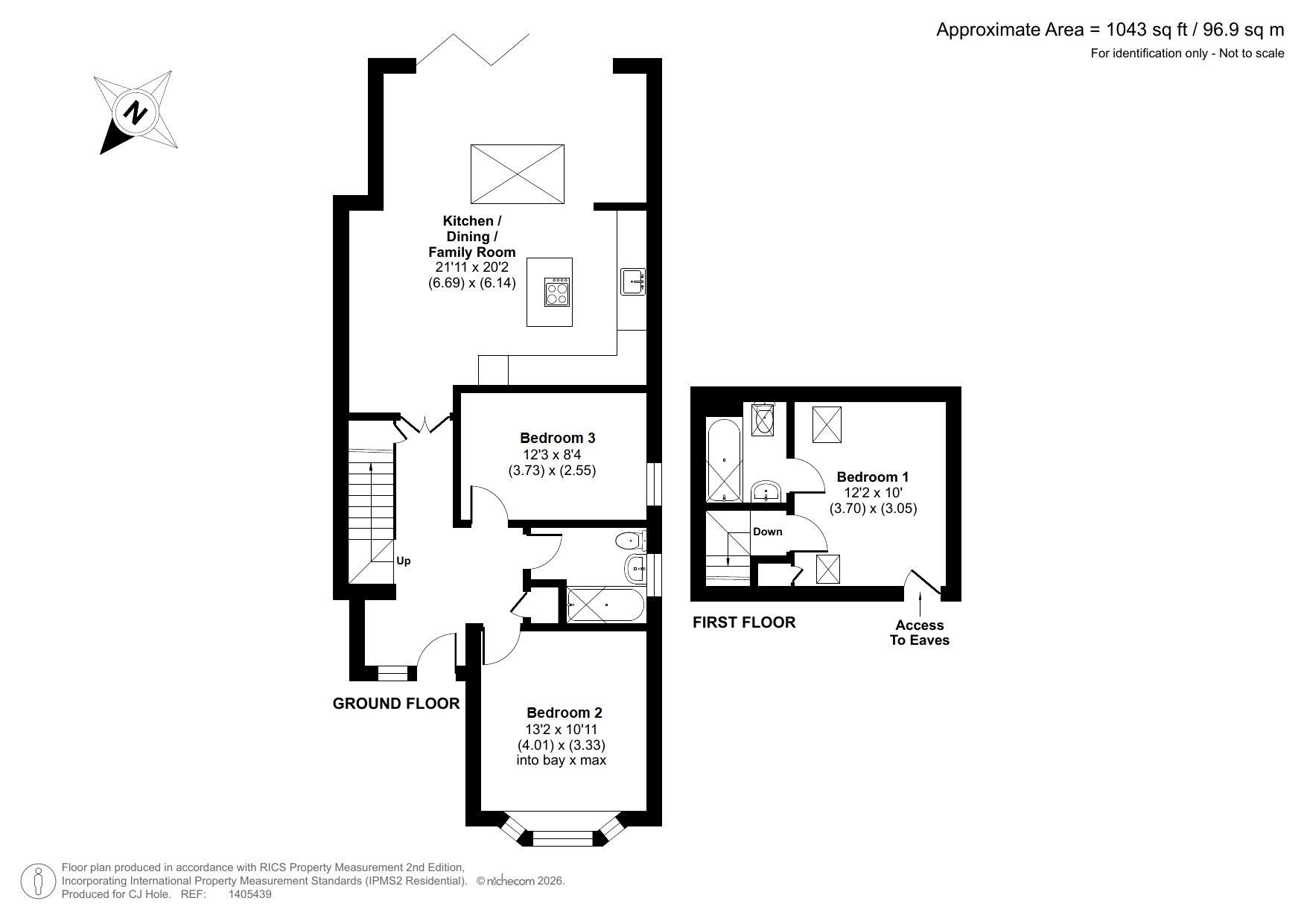
A newly renovated and extended three-bedroom modern home situated in a popular location close to local shops and schools, 14 Hawkswood Road offers spacious and flexible accommodation arranged over two floors. A generous entrance hall is accessed via a high-quality, secure front door with an oversized handle and feature obscure-glazed central panel, and provides access to all ground-floor rooms, including two double bedrooms positioned at the front of the property and a modern family bathroom. To the rear, a superb open-plan kitchen, sitting and dining area has been thoughtfully created, featuring a contemporary kitchen with integrated appliances including an oven, induction hob, fridge/freezer, dishwasher, overhead extractor within the island and carousel corner units. Bespoke glazed oak-framed doors lead into the main reception space, where glazed panels incorporated into the staircase design enhance the flow of natural light. Fully retractable folding doors connect the reception area seamlessly to the freshly landscaped garden, while a striking ceiling lantern and floor-to-ceiling glazing flood the space with daylight, creating the perfect social hub for modern family living. Upstairs, there is a further double bedroom complemented by an en-suite bathroom. Additional benefits include a new boiler and central heating system, double glazing, and is offered for sale with no onward chain. Outside A block-paved driveway provides off-road parking for several vehicles and extends to the rear garden, where the landscaped space offers a patio seating area alongside a generous lawn, ideal for relaxing or entertaining. Situation Hawkswood Road is an established road in Warden Hill with a very light flow of traffic, just a 5-10 minute walk from extensive local amenities in Salisbury Avenue and closer still to a regular bus service to the town centre. Cheltenham is a superb place for shopping with an abundance of main high street shops, specialist boutiques, cafés and restaurants. Education is very well catered for including The Cheltenham Ladies’ College, Cheltenham College, Pates Grammar School, St. Edward’s and Dean Close. There are excellent sporting facilities in and around Cheltenham including indoor and outdoor swimming facilities, numerous golf courses and tennis, squash, hockey and croquet clubs. Host to annual cultural festivals including music, literature and jazz, the town is equally famous for horse racing and the annual Gold Cup. Communications are excellent with easy access to the M5 and there are regular train services to London Paddington in just over 2 hours.


Additional Information
Tenure:
Freehold
Council Tax Band:
C

Mortgage calculator

Calculate Your Stamp Duty
£
Results
Stamp Duty To Pay:
Effective Rate:
Tax Band % Taxable Sum Tax

Hawkswood Road, Warden Hill, Cheltenham, GL51

Struggling to find a property? Get in touch and we'll help you find your ideal property.