Swanswell Drive, Benhall, Cheltenham, GL51

£360,000 | Available

3 bedroom House For Sale

or call 01242 255101
Standout Features

Property Description

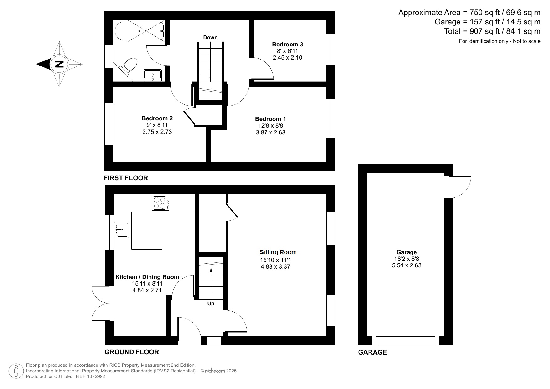
Situated in the popular Benhall area of Cheltenham, 16 Swanswell Drive is a beautifully maintained semi-detached family home offering a superb balance of comfort, style and potential. The property features a welcoming entrance hall leading to a bright and spacious sitting room, while a kitchen/diner opens directly onto a generous double-width rear garden. The home has been thoughtfully updated with modern oak internal doors throughout and a contemporary oak and glass balustrade on the staircase, adding a touch of elegance and quality to the interior. Upstairs, there are three well-proportioned bedrooms and a modern family bathroom. Externally, the property benefits from off-street parking to the front, as well as a single garage located at the rear, complete with a power supply and a further parking area in front of the garage, providing excellent storage and convenience. The private, enclosed rear garden offers a peaceful outdoor space ideal for relaxation or entertaining. Planning permission has previously been granted for a 2 storey side extension and single storey rear extension. Further benefits include gas central heating and double glazing. Benhall is a residential area, offering a perfect blend of suburban tranquillity, community spirit, and convenience. Situated to the west of the town centre, it provides excellent access to the A40, M5 and GCHQ, making it popular with families and professionals alike. The area is renowned for its peaceful, tree-lined streets, well-kept homes and friendly neighbourhood feel, with a range of local amenities including shops, parks and playgrounds, as well as being within the catchment for highly regarded schools such as Benhall Infants and St Mark’s Junior School. Residents also enjoy proximity to green spaces and walking routes, with Montpellier and Hatherley Park just a short distance away, while Cheltenham town centre—with its shops, dining and cultural attractions—is easily accessible. With strong transport links to Gloucester, Tewkesbury and Bristol, Benhall offers the ideal balance of comfortable, community-focused living within easy reach of everything Cheltenham has to offer.


Additional Information
Tenure:
Freehold
Council Tax Band:
C

Mortgage calculator

Calculate Your Stamp Duty
£
Results
Stamp Duty To Pay:
Effective Rate:
Tax Band % Taxable Sum Tax

Swanswell Drive, Benhall, Cheltenham, GL51

Struggling to find a property? Get in touch and we'll help you find your ideal property.