Belmont Road, Bristol, BS4

£386,000 | Available

3 bedroom House For Sale

or call 0117 4729146
Standout Features

Property Description

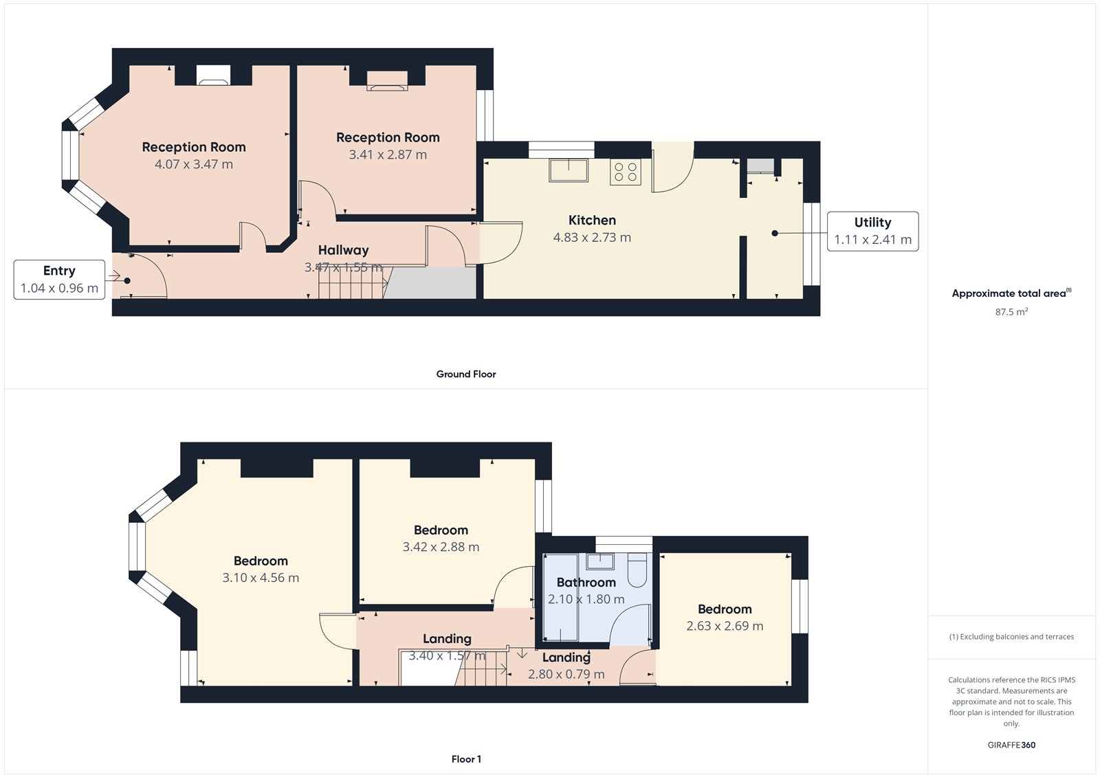
On the ground floor, the property features two bright and versatile reception rooms, both offering flexible use as living spaces, dining areas, or work-from-home rooms. To the rear, a contemporary kitchen provides ample workspace and storage, fitted with clean, modern units. A useful utility room sits beyond the kitchen, adding extra convenience and helping to keep the main living areas organised. The first floor is arranged around a central landing and offers three well-proportioned bedrooms, each with good natural light and space for wardrobes or additional furniture. The modern bathroom serves the floor, fitted with stylish, up-to-date fixtures and a clean, contemporary finish. Outside, the rear garden includes a decked patio area ideal for outdoor dining or relaxing, with a lawn in front. The garden offers a private and manageable area suitable for families, entertaining, or low-maintenance enjoyment. Nestled into a lovely pocket of Brislington, this is one of many beautiful terraces situated on the quiet and desirable Belmont Road which is a non-through road. This is a fantastic location for easy access to the city, quick access to the motorway network, great cycle paths and a simple walk along the river to Temple Meads/The Centre. There is also a number of good shops, supermarkets, pubs and a gym all in walking distance. Verified Material Information Council Tax band: B Tenure: Freehold Property type: House Property construction: Standard construction Energy Performance rating: D Electricity supply: Mains electricity Solar Panels: No Other electricity sources: No Water supply: Mains water supply Sewerage: Mains Heating: Mains gas-powered central heating is installed. Heating features: Double glazing Broadband: FTTP (Fibre to the Premises) Mobile coverage: O2 - Good, Vodafone - Good, Three - Good, EE - OK Parking: On Street Building safety issues: No Restrictions - Listed Building: No Restrictions - Conservation Area: No Restrictions - Tree Preservation Orders: None Public right of way: No Long-term area flood risk: No Historical flooding: No Flood defences: No Coastal erosion risk: No Planning permission issues: No Accessibility and adaptations: None Coal mining area: Yes Non-coal mining area: No All information is provided without warranty. Contains HM Land Registry data © Crown copyright and database right 2021. This data is licensed under the Open Government Licence v3.0. The information contained is intended to help you decide whether the property is suitable for you. You should verify any answers which are important to you with your property lawyer or surveyor or ask for quotes from the appropriate trade experts: builder, plumber, electrician, damp, and timber expert.


Additional Information
Tenure:
Freehold
Council Tax Band:
B

Utilities
Broadband:
Fibre to Premises
Electricity:
Mains Supply
Sewerage:
Mains Supply
Heating:
Central,
Double Glazing,
Gas Central

Mortgage calculator

Calculate Your Stamp Duty
£
Results
Stamp Duty To Pay:
Effective Rate:
Tax Band % Taxable Sum Tax

Belmont Road, Bristol, BS4

Struggling to find a property? Get in touch and we'll help you find your ideal property.