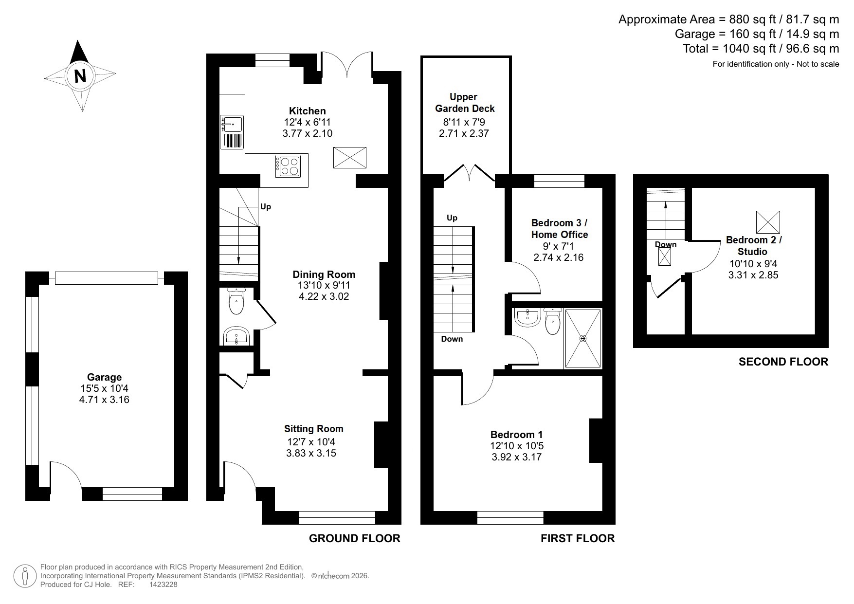
- recessed porch
- open-plan sitting/dining room with contemporary fireplaces and oak flooring
- cloakroom
- stylish kitchen with integrated appliances and roof lantern French doors to a first-floor seating terrace
- 2 first floor bedrooms
- sumptuous wet room
- second floor with third bedroom/office/studio
- gas central heating with underfloor heating to the ground floor
- pretty frontage and professionally landscaped terraced rear garden, detached garage, council tax band C
A stunning end-of-terrace Victorian house blending a classic red brick façade with an outstanding modern interior, imaginatively designed and created over the past 12 months. Approached via a paved path with shrubs on either side, a recessed porch provides the entrance into the main living area which has been cleverly arranged into distinct zones within a generous open-plan space. Oak flooring extends through the main living room, while a practical tiled floor has been laid in the kitchen, both benefitting from the comfort of underfloor heating. Stylish panelling adorns the walls, creating the perfect blend of old and new, complemented by two fireplaces and a contemporary balustraded staircase. The living, dining and kitchen areas connect seamlessly. The kitchen is equipped with an extensive range of integrated appliances and opens to the rear garden through French doors. The first floor provides two bedrooms, one of which could also serve as a home office. A sleek wet room with courtesy lighting exudes warmth and quality. French doors from this level lead to an outdoor seating terrace, perfect for morning coffee, evening drinks, or a peaceful retreat to enjoy throughout the day. The top floor provides either an additional bedroom or studio. Benefitting from double-glazed windows and gas central heating, the style and quality of this home are of an exceptionally high standard. The rear garden has been landscaped to create an attractive terraced space, leading to a detached garage at the end with secure gated access to Langton Grove Road Situation Cudnall Street enjoys a convenient yet peaceful position within easy walking distance of the wide range of shops, cafés and everyday amenities at Sixways, making it ideal for those who value having local facilities close at hand. The town centre is also within comfortable walking distance, approximately 20 minutes away, offering an excellent selection of restaurants, boutiques, cultural venues and parks. Charlton Kings itself is one of Cheltenham’s most desirable residential areas, known for its village-like atmosphere, attractive period homes and strong sense of community. The area also provides easy access to beautiful countryside, together with a selection of well-regarded local pubs, sporting facilities and highly regarded schools. Centre for the Cotswolds, Cheltenham is a superb place for shopping with an abundance of main high street shops, specialist boutiques, cafés and restaurants. Education is very well catered for including The Cheltenham Ladies’ College, Cheltenham College, Pates Grammar School, St. Edward’s and Dean Close. There are excellent sporting facilities in and around Cheltenham including indoor and outdoor swimming facilities, numerous golf courses and tennis, squash, hockey and croquet clubs. Host to annual cultural festivals including music, literature and jazz, the town is equally famous for horse racing and the annual Gold Cup. Communications are excellent with easy access to the M5 and there are regular train services to London Paddington in just over 2 hours.
| Tax Band | % | Taxable Sum | Tax |
|---|
Struggling to find a property? Get in touch and we'll help you find your ideal property.