Queens Retreat, Cheltenham, GL51

£300,000 | SSTC

3 bedroom House Sold STC

or call 01242 255101
Standout Features

Property Description

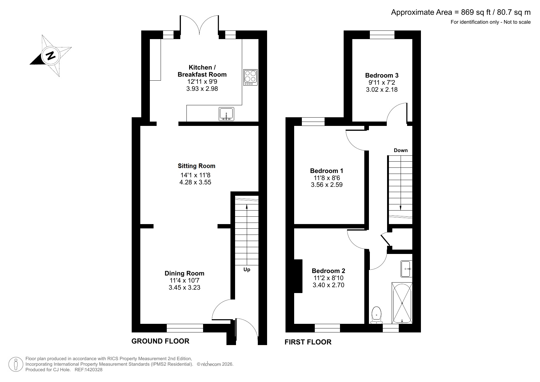
15 Queens Retreat is a charming traditional Victorian townhouse arranged over two floors, offering well-proportioned accommodation. The welcoming entrance hall leads through to a double reception room, ideal for both relaxing and entertaining, while the kitchen/breakfast room to the rear provides a sociable space for everyday living, complete with French doors opening directly onto an east facing garden. Upstairs, there are three bedrooms and a family bathroom fitted with a shower over the bath. Outside, the rear garden is predominantly laid to patio for ease of maintenance, complemented by attractive planted borders. Further benefits include gas central heating, double glazing, residents’ permit parking within Zone 12, and the property is offered for sale with no onward chain. Situation Conveniently located within a short walk of two large supermarkets (Waitrose and Tesco), Gloucester Road Primary School, whilst approximately a 10 minute walk from the train station and town centre via St Georges Road. Cheltenham is a superb place for shopping with an abundance of main high street shops, specialist boutiques, cafés and restaurants. Host to annual cultural festivals including music, literature and jazz, the town is equally famous for horse racing and the annual Gold Cup. Communications are excellent with easy access to the M5 and there are regular train services to London Paddington in just over 2 hours


Additional Information
Tenure:
Freehold
Council Tax Band:
B

Mortgage calculator

Calculate Your Stamp Duty
£
Results
Stamp Duty To Pay:
Effective Rate:
Tax Band % Taxable Sum Tax

Queens Retreat, Cheltenham, GL51

Struggling to find a property? Get in touch and we'll help you find your ideal property.