- entrance hall
- open-plan sitting room leading to dining room
- extended kitchen/breakfast room
- two first-floor double bedrooms & top-floor bedroom
- stylish family bathroom
- character features throughout & gas central heating
- enclosed front garden
- generous south-facing rear garden with access
- residents’ permit parking & no onward chain
- council tax band B
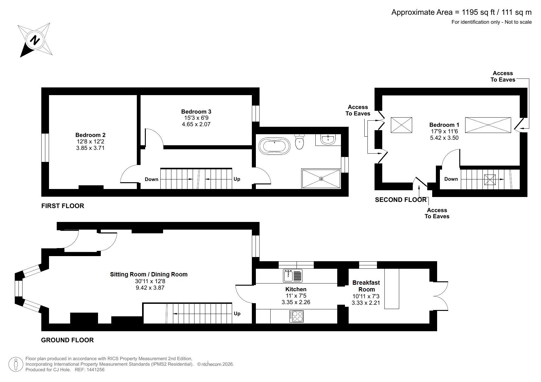
This attractive Victorian townhouse has been thoughtfully enhanced to provide flexible and stylish living space, seamlessly blending period charm with modern design, all complemented by a delightful south-facing garden. The ground floor offers a welcoming entrance hall leading to two open-plan reception rooms, creating a bright and versatile living and entertaining space. These rooms retain their character with charming fireplaces and original sash windows. To the rear, a superb extended kitchen/breakfast room features Velux windows that flood the space with natural light, alongside French doors opening directly onto the garden. On the first floor are two well-proportioned double bedrooms and a spacious, contemporary family bathroom. On the top floor there is a further double bedroom with Velux windows. Externally, the property benefits from a small enclosed front garden with a pedestrian gate. The rear garden is a particular highlight, generous in size, south-facing, and mainly laid to lawn, with a decked seating area and timber shed, all enclosed by fencing and enjoying rear access. Further benefits include gas central heating, gated rear access, and is being offered with no onward chain. Freehold Roman Road is a popular one-way street with residents’ permit parking, conveniently located close to the train station and a vibrant selection of local shops and amenities. Cheltenham is renowned for its excellent shopping, offering a mix of high street favourites, independent boutiques, cafés, and restaurants. The town also boasts outstanding educational facilities and a wide range of leisure and sporting opportunities. Host to annual cultural festivals including music, literature and jazz, the town is equally famous for horse racing and the annual Gold Cup. Transport links are excellent, with easy access to the M5 motorway and regular train services to London Paddington in just over two hours.
| Tax Band | % | Taxable Sum | Tax |
|---|
Struggling to find a property? Get in touch and we'll help you find your ideal property.