Shurdington Road, Leckhampton, Cheltenham, GL53

£300,000 | Available

3 bedroom House For Sale

or call 01242 255101
Standout Features

Property Description

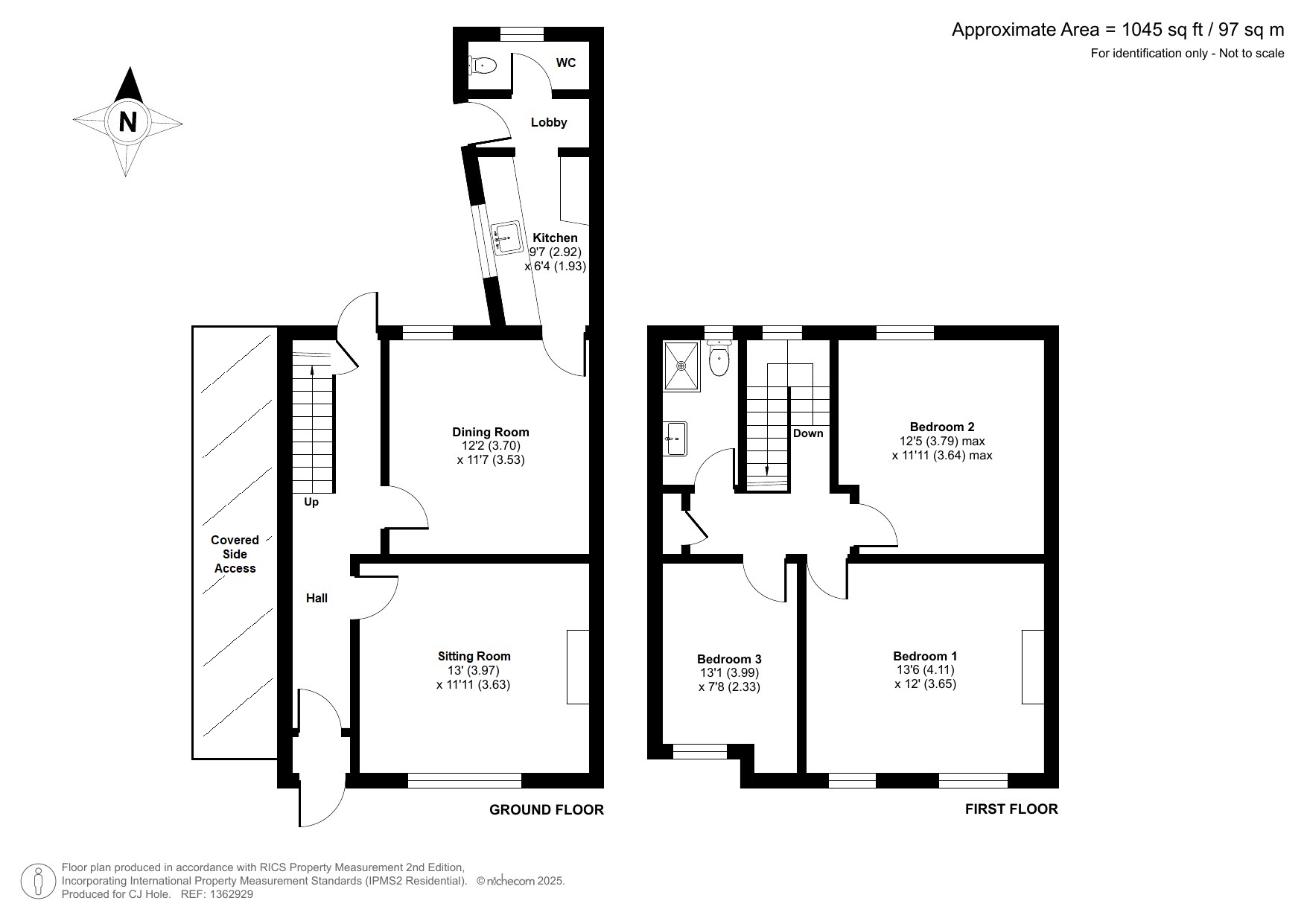
A charming and unusually wide three-bedroom townhouse offering well-proportioned accommodation, presenting an exciting opportunity for a buyer to update and reconfigure to their own taste and lifestyle. Wider than average — three windows across at first-floor level — the property enjoys a great sense of space and light throughout. Approached via a porch leading into an entrance hall with a door to a small cellar, the layout includes a spacious sitting room and a separate dining room that flows through to the kitchen. Beyond the kitchen, there is a lobby with a door to the rear courtyard and a WC. Upstairs, there are three bedrooms and a family bathroom. Outside, the property benefits from a generous frontage enclosed by a rendered wall, while a shared covered side access leads to a gate into a walled rear courtyard garden. Conveniently situated close to local shops, schools, parks, and transport links, this is a rare opportunity to acquire a home with great potential in one of Cheltenham’s most sought-after residential areas. Offered with no onward chain – early viewing is highly recommended. Freehold The property is ideally located just moments from the Bath Road amenities, which provide an excellent range of shops, cafés, restaurants, and bars. Also nearby is The Suffolks, often described as “The Notting Hill of Cheltenham,” renowned for its vibrant atmosphere and eclectic mix of restaurants, cafés, delicatessens, antique shops, interior boutiques, and independent stores. Cheltenham itself offers exceptional shopping, with an abundance of high street names and specialist boutiques, as well as a wealth of cafés and restaurants. The town is also home to outstanding educational establishments and a wide variety of sporting and leisure facilities. Communications are excellent, with easy access to the M5 motorway and regular train services to London Paddington in just over two hours.


Additional Information
Tenure:
Freehold
Council Tax Band:
C

Mortgage calculator

Calculate Your Stamp Duty
£
Results
Stamp Duty To Pay:
Effective Rate:
Tax Band % Taxable Sum Tax

Shurdington Road, Leckhampton, Cheltenham, GL53

Struggling to find a property? Get in touch and we'll help you find your ideal property.