- entrance hall
- sitting room & kitchen/dining room
- three double bedrooms & en-suite shower room
- family bathroom & cloakroom
- double glazing & upgraded gas central heating system with pressurised tank
- private rear garden with gated access
- driveway parking for one car (potential to enlarge)
- scope to extend to the rear (STPP) & potential to convert garage (subject to consent)
- highly sought-after location & council tax band C
- no onward chain
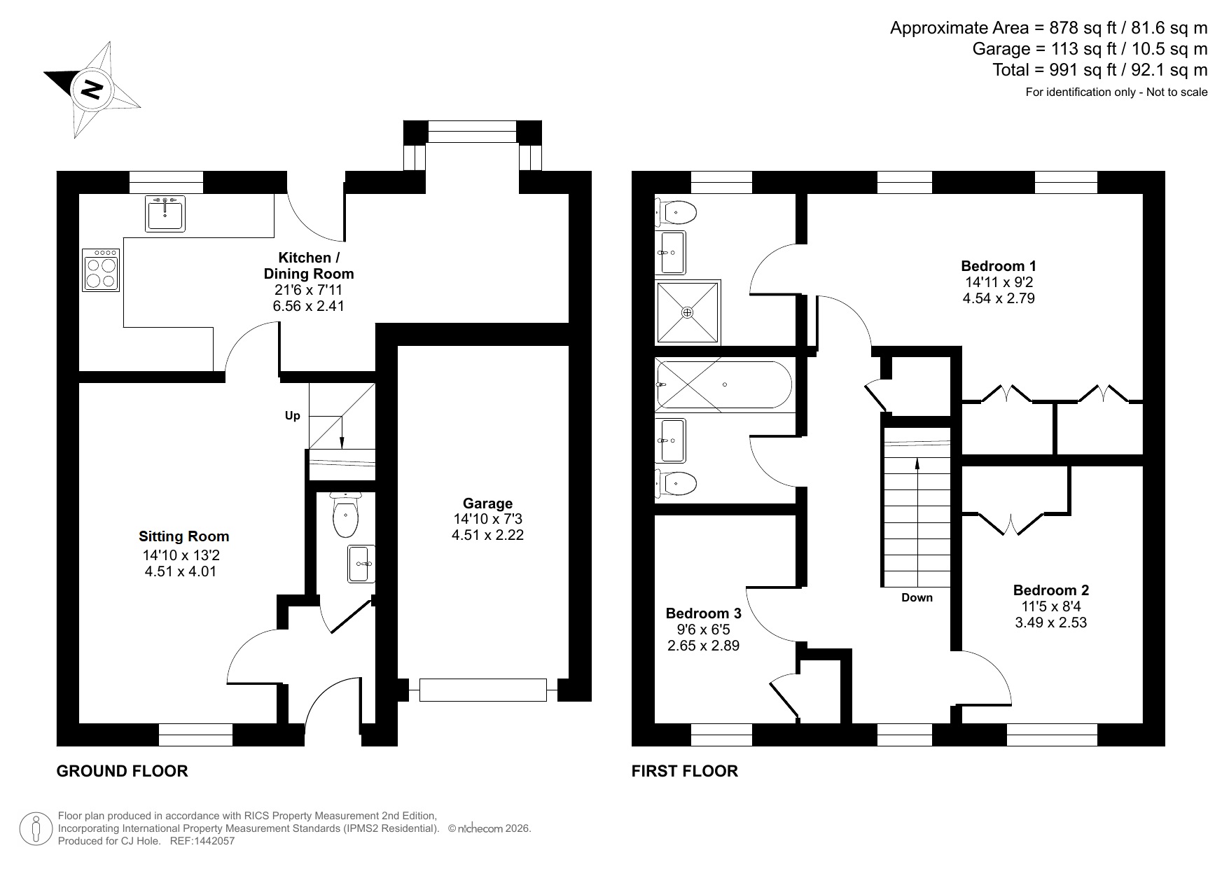
Built in 2004 by Bryant Homes, this attractive town house offers well proportioned accommodation over two floors. The property has been well maintained and is approached via a traditionally styled front door leading into a welcoming hall with a cloakroom off. A generous sitting room at the front has a fireplace and an open plan kitchen/dining room at the rear features a box-bay window allowing plenty of natural light to flood through. The kitchen has integrated appliances and a door to the rear garden. Upstairs, there are three bedrooms, an en-suite shower room and bathroom. All three bedrooms have built in wardrobes and the smallest at nearly 8m² would make a generous home office. A drive at the front can accommodate a car in addition to the garage and a wide path and lawn alongside. The rear garden is a delightful private outdoor space, mainly lawned with fenced boundaries and a rear pedestrian gate for added convenience. A super low-upkeep modern home in a very desirable location with scope for further improvement and extension. Freehold Arthur Bliss Gardens is a small cul de sac off The Park, within easy walking distance of Tivoli, Bath Road shops and The Suffolks. A highly sought after location close to reputable schools and the University campus, whilst Montpellier and The Promenade are about 1 mile away. Cheltenham is a superb place for shopping with an abundance of main high street shops, specialist boutiques, cafés and restaurants. Education is very well catered for including The Cheltenham Ladies’ College, Cheltenham College, Pates Grammar School, St. Edward’s and Dean Close. There are excellent sporting facilities in and around Cheltenham including indoor and outdoor swimming facilities, numerous golf courses and tennis, squash, hockey and croquet clubs. Host to annual cultural festivals including science, music, literature and jazz, the town is equally famous for horse racing and the annual Gold Cup. Communications are excellent with easy access to the M5 and there are regular train services to London Paddington in just over 2 hours.
| Tax Band | % | Taxable Sum | Tax |
|---|
Struggling to find a property? Get in touch and we'll help you find your ideal property.