Sorrel Place, Stoke Gifford, Bristol, South Gloucestershire, BS34

£595,000 | Available

5 bedroom House For Sale

or call 01454 626300
Standout Features

Property Description

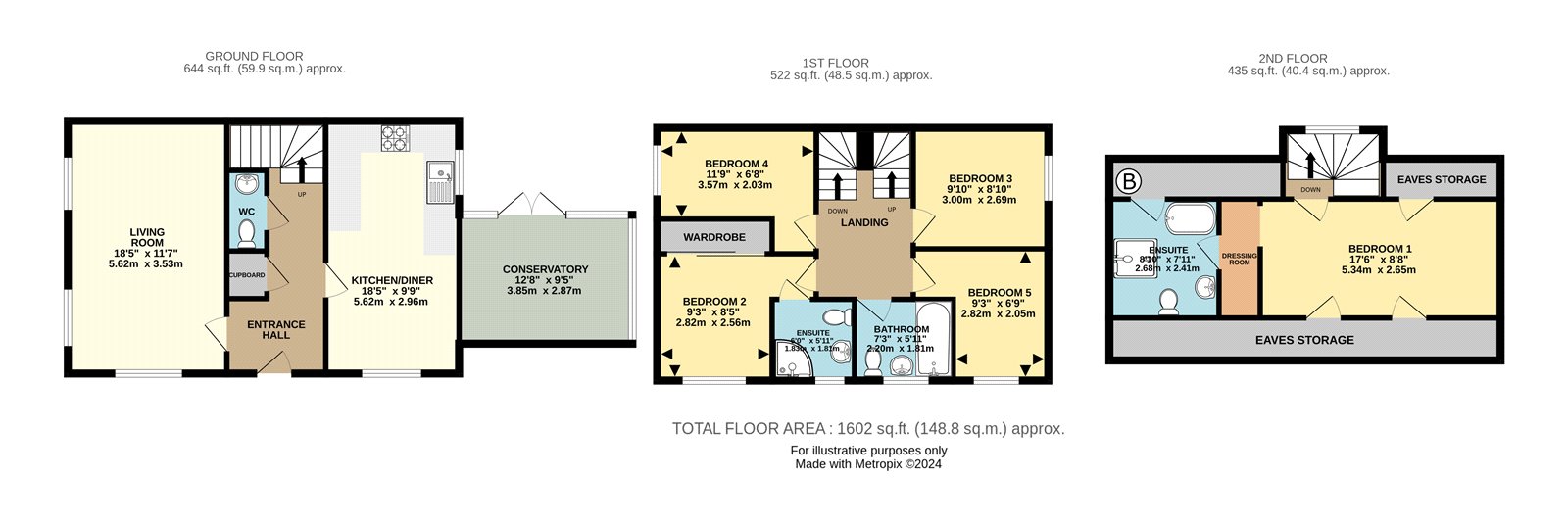
Upon entering, you'll find a welcoming hall that leads to a convenient WC, a cosy lounge perfect for relaxation, and a spacious kitchen/diner equipped with integrated appliances. The kitchen/diner opens up to a charming conservatory, which provides lovely views of the well-maintained garden, making it an ideal space for entertaining or enjoying quiet moments. The first floor accommodates four generously sized bedrooms, offering plenty of space for family and guests. The family bathroom suite serves these bedrooms, while Bedroom 2 benefits from its own built-in wardrobe and private en-suite, adding an extra touch of luxury. Ascend to the second floor, where the master bedroom awaits—a private retreat featuring a dressing area and a luxurious four-piece en-suite. This floor provides a sense of privacy and space, making it perfect for unwinding after a long day. The home also offers practical features such as gas central heating and double glazing for energy efficiency. The mature garden, thoughtfully landscaped, provides a serene outdoor space. The property is complete with a detached single garage, which can be accessed from the garden, and a driveway that provides ample parking space for vehicles. This property is ideal for those seeking a modern, well-maintained home in a popular and convenient location. Should you wish to proceed with an offer on this property, we are obliged by HMRC to conduct mandatory Anti Money Laundering Checks. We outsource these checks to our compliance partners at Coadjute and they charge a fee for this service. The 'Festive Image' has been digitally enhanced using (AI) to include temporary festive/seasonal decor for illustrative marketing purposes only. The items shown are not present in the property and are not included in the sale.


Additional Information
Council Tax Band:
E

Mortgage calculator

Calculate Your Stamp Duty
£
Results
Stamp Duty To Pay:
Effective Rate:
Tax Band % Taxable Sum Tax

Sorrel Place, Stoke Gifford, Bristol, South Gloucestershire, BS34

Struggling to find a property? Get in touch and we'll help you find your ideal property.