Cowslip Close, Cheltenham, Gloucestershire, GL53

£2,750 PCM | Available

4 bedroom House To Let

or call 01242 255101
Standout Features

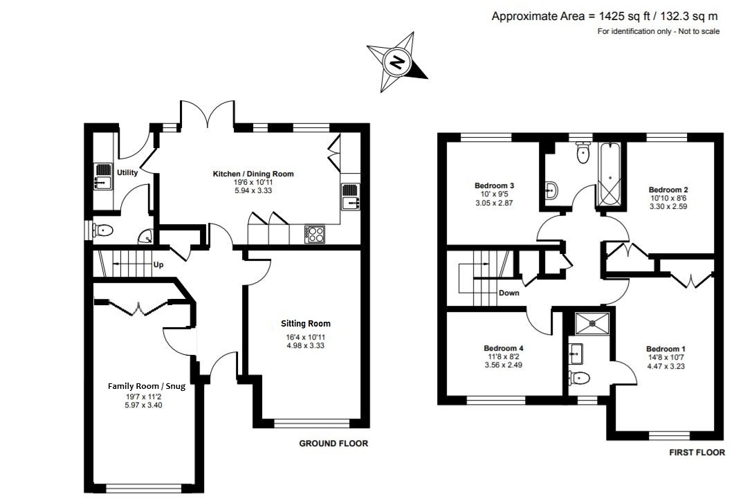
Property Description

A modern detached family home which sits in a favourable south west facing plot on the Brizen Park development. The interior is thoughtfully designed with impressive quality fixtures and fittings. The sitting room and family room/snug are to the front of the property whilst the kitchen/dining room featuring integrated appliances provides access to the garden. A utility room and cloakroom complete the ground floor. Upstairs the four bedrooms are generously proportioned with the master and second bedroom both having fitted Smoked Oak fronted wardrobes. The family bathroom and en suite to master have both been fitted with high quality sanitary ware and ceramic flooring. A double width driveway for two cars provides parking and gated side access leads from the front to the south west facing rear garden which is fully enclosed and is predominantly laid to lawn. DEPOSIT REQUIRED - £3170 AVAILABLE EARLY JANUARY UNFURNISHED NOTE : When you apply for a tenancy there will be a holding deposit of £634 to pay -ask our branch staff for further details.


Additional Information
Council Tax Band:
E

Cowslip Close, Cheltenham, Gloucestershire, GL53

Struggling to find a property? Get in touch and we'll help you find your ideal property.