Fairfield Place, Southville, Bristol, BS3

£400,000 | SSTC

2 bedroom House Sold STC

or call 0117 9634373
Standout Features

Property Description

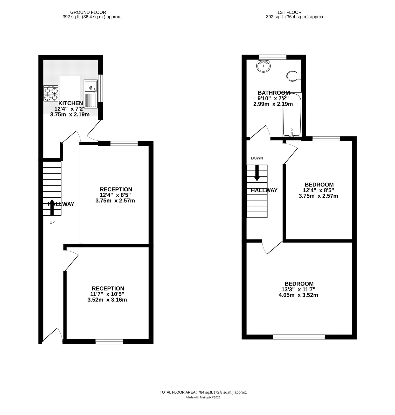
Upon entering the property, you’re welcomed into a bright hallway that sets the tone for the rest of the home. To your right, the cosy front living room provides a warm and inviting space to relax, complete with a large window that fills the room with natural light and a neutral décor. Straight ahead from the hallway, the separate dining room offers an excellent space for entertaining or enjoying meals with family and friends. To the rear, the contemporary kitchen has been thoughtfully designed with sleek cabinetry, and generous worktop space. A door from the kitchen leads out to a delightful rear garden, which has been well maintained and provides a private outdoor retreat, perfect for enjoying a morning coffee, hosting summer gatherings, or simply unwinding at the end of the day. Upstairs, the property offers two spacious double bedrooms, each well-proportioned and tastefully decorated. The modern bathroom is also located on the first floor and features a clean, stylish finish with a well-appointed three-piece bathroom suite. Located in one of Bristol’s most sought after locations, Fairfield Place is a delightful quiet street with a vast array of open green spaces nearby including Gores Marsh Park, Ashton Court Estate and Greville Smyth Park. This property has easy access to Bristol City Centre, Bristol International Airport and the Bristol Link Road. These are excellent transportation links making this one of the most convenient and valued locations in Bristol. This Southville location offers the flourishing independent shops, bars, cafes and restaurants of North Street ideally located only a minutes’ walk away. This excellent home is in close proximity to Wapping Wharf and Bristol Temple Meads train station. Many well-respected schools are nearby including the very popular Southville Primary School. Verified Material Information Council Tax band: B Tenure: Freehold Property type: House Property construction: Standard undefined construction Energy Performance rating: D Electricity supply: Mains electricity Solar Panels: No Other electricity sources: No Water supply: Mains water supply Sewerage: Mains Heating: Mains gas-powered central heating is installed. Heating features: Double glazing Broadband: FTTP (Fibre to the Premises) Mobile coverage: O2 - Great, Vodafone - Great, Three - Good, EE - Good Parking: On Street Building safety issues: Yes Building safety - defects or hazards: None. Building safety - work done: None Building safety - work required be done: None Restrictions - Listed Building: No Restrictions - Conservation Area: No Restrictions - Tree Preservation Orders: None Public right of way: No Long-term area flood risk: No Historical flooding: No Flood defences: No Coastal erosion risk: No Planning permission issues: No Accessibility and adaptations: None Coal mining area: Yes Non-coal mining area: Yes All information is provided without warranty. Contains HM Land Registry data © Crown copyright and database right 2021. This data is licensed under the Open Government Licence v3.0. The information contained is intended to help you decide whether the property is suitable for you. You should verify any answers which are important to you with your property lawyer or surveyor or ask for quotes from the appropriate trade experts: builder, plumber, electrician, damp, and timber expert.


Additional Information
Tenure:
Freehold
Council Tax Band:
B

Utilities
Broadband:
Fibre to Premises
Electricity:
Mains Supply
Sewerage:
Mains Supply
Heating:
Central,
Double Glazing,
Gas Central

Mortgage calculator

Calculate Your Stamp Duty
£
Results
Stamp Duty To Pay:
Effective Rate:
Tax Band % Taxable Sum Tax

Fairfield Place, Southville, Bristol, BS3

Struggling to find a property? Get in touch and we'll help you find your ideal property.