- brand new three-bedroom home
- low-maintenance design throughout
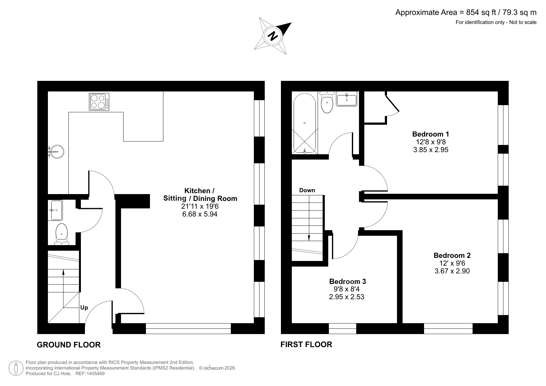
- open-plan sitting/dining/kitchen
- built-in kitchen appliances
- ground floor cloakroom
- three bedrooms and family bathroom
- allocated parking with EV charging point
- air-source heat pump heating
- no onward chain
- council tax TBC
21 Keynsham Street is a brand new three-bedroom home thoughtfully designed for modern living. The ground floor features a bright and spacious open-plan sitting, dining and kitchen area, with the kitchen complemented by a range of built-in appliances, making it ideal for both everyday life and entertaining. A convenient cloakroom completes the ground floor. Upstairs, the first floor offers three well-proportioned bedrooms and a contemporary family bathroom. Externally, the property benefits from an allocated parking space with an electric vehicle charging point. Heated via an efficient air-source heat pump, this energy-conscious home is offered for sale with no onward chain, presenting an excellent opportunity for a smooth and straightforward purchase. Freehold Keynsham Street is perfectly positioned just moments from Cheltenham’s vibrant town centre, combining convenience with lifestyle appeal. Enjoy shops, cafés, and restaurants on your doorstep, with Sandford Park and the Cheltenham Lido just a short stroll away. The area boasts excellent schools, green spaces, and strong transport links, including Cheltenham Spa station and major roads. Ideal for families and professionals alike, this location offers the perfect mix of community charm and town centre living. Cheltenham is a superb place for shopping with an abundance of main high street shops, specialist boutiques, cafes and restaurants. Education is very well catered and there are excellent sporting facilities in and around the town. Communications are excellent with easy access to the M5 and there are regular train services to London Paddington in just over 2 hours.
| Tax Band | % | Taxable Sum | Tax |
|---|
Struggling to find a property? Get in touch and we'll help you find your ideal property.