- Extended and reconfigured three/four bedroom link-detached family home
- Well balanced and adaptable accommodation arranged over two floors
- Sitting room with wood-burning stove
- Modern fitted kitchen opening to dining room with feature open fire
- Conservatory overlooking the private rear garden
- Versatile ground floor bedroom, office or playroom
- Downstairs cloakroom
- Modern fully tiled family bathroom with freestanding bath and built-in vanity
- Gas central heating and double glazing
- Driveway parking
- Private enclosed rear garden
- Approximately one mile from Cirencester town centre
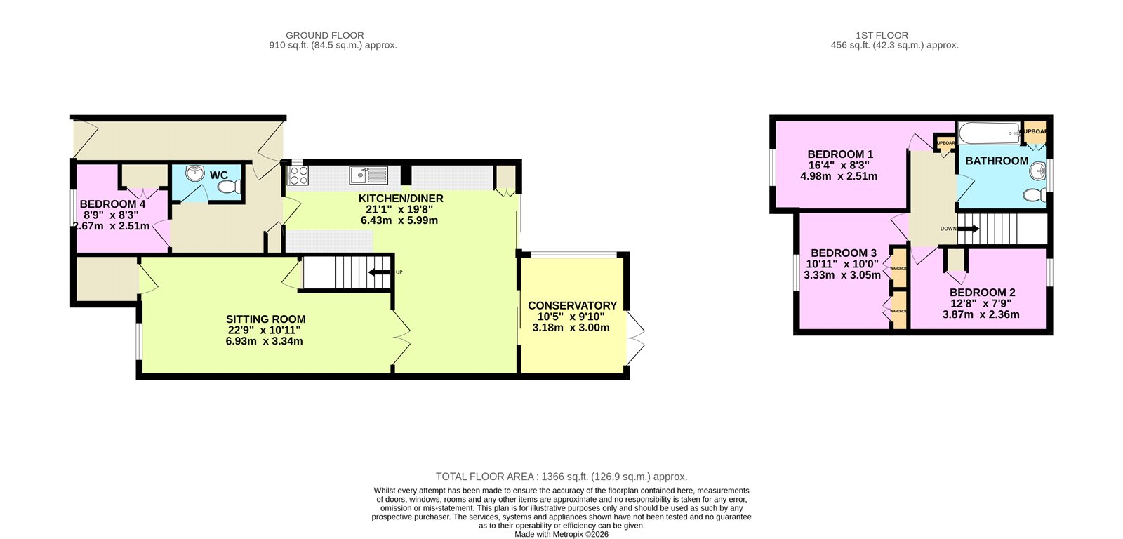
The accommodation is arranged over two floors. On the ground floor, an entrance hall leads to the former garage which has been thoughtfully incorporated into the home to create a versatile ground floor bedroom or home office, complemented by a convenient downstairs cloakroom. The modern fitted kitchen opens into a light and airy dining room featuring an open fire, creating a welcoming space for everyday living and entertaining. A conservatory overlooking the garden provides an additional reception area and enjoys pleasant views of the rear garden. Completing the ground floor is a separate sitting room with a wood-burning stove, offering a cosy and inviting living space, along with useful built-in storage. To the first floor are three well-proportioned bedrooms and a family bathroom which has been replaced in recent years to create a stylish, modern suite, fully tiled and fitted with a freestanding bath, built-in vanity unit and contemporary fittings. Externally, the property benefits from a gravelled driveway to the front providing off-street parking, while to the rear there is a private enclosed garden mainly laid to lawn with patio areas ideal for outdoor dining, together with a garden shed. Council tax D £2,413.31 EPC D64 I.D checks. We are required by law to conduct anti-money laundering checks on all those selling or buying a property. The initial checks are carried out on our behalf by Lifetime Legal who will contact you once you have agreed to instruct us in your sale or had an offer accepted on a property you wish to buy. The cost of these checks is £48 (incl. VAT), which covers the cost of obtaining relevant data and any manual checks and monitoring which might be required. This fee will need to be paid by you in advance of us publishing your property (in the case of a vendor) or issuing a memorandum of sale (in the case of a buyer), directly to Lifetime Legal, and is non-refundable. We do not receive any of the fee taken by Lifetime Legal.
| Tax Band | % | Taxable Sum | Tax |
|---|
Struggling to find a property? Get in touch and we'll help you find your ideal property.